Skip to main content
Caribbean Design Group
Caribbean Design Group
Home
Services
Portfolio
About Us
Consultants
Stock Plans
FAQ
Testimonials
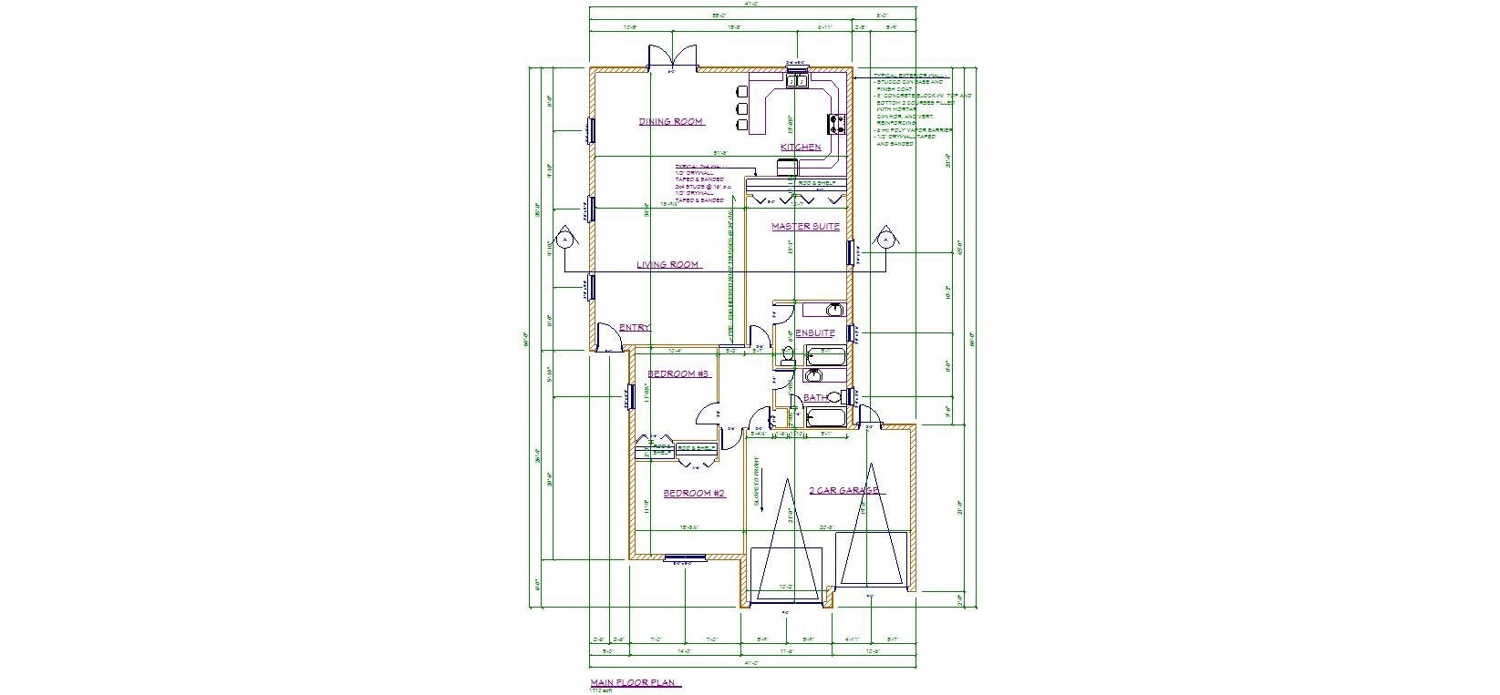
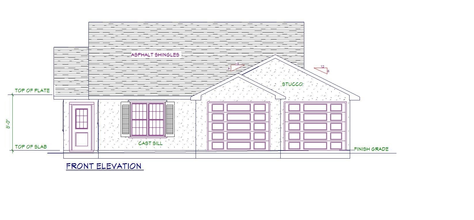
Palm - 1410
$3,600.00
Quantity
Disabled
3 Bedroom, 2 Bath
3 Car Garage